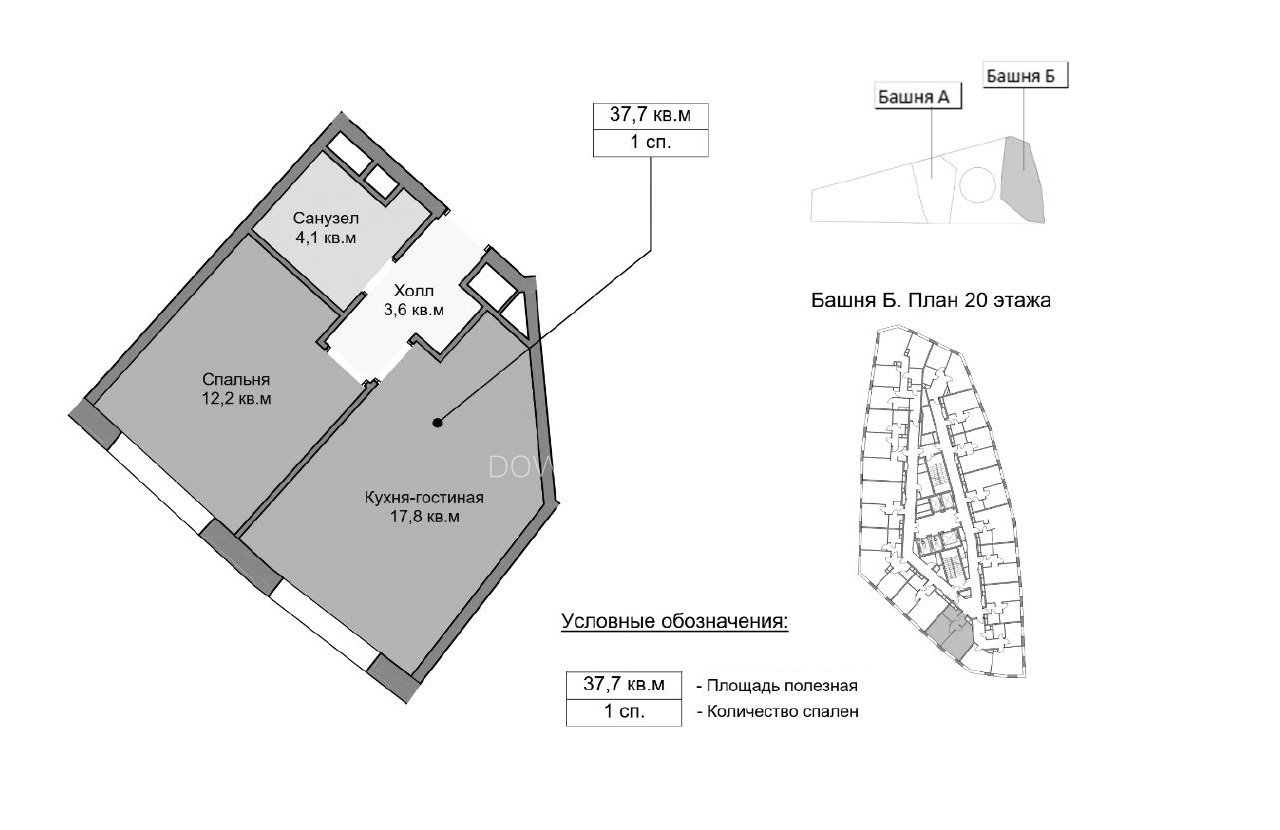
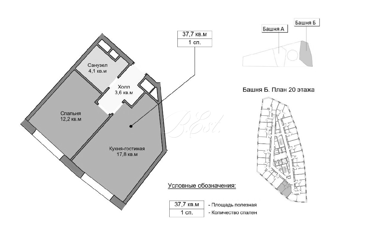
Продается 2-х комн. новостройка, 37.7 кв.м., 20/21 эт
| Стоимость | 33 930 000 |
|---|---|
| Стадия строительства | строится |
| Год постройки | 2023 |
| Этаж | 20 |
| Этажность | 21 |
| Комнат в квартире | 2 |
| Площадь, кв.м. | 37.7 |
| Жилая площадь | 12.2 |
| Площадь кухни, кв.м. | 17.8 |
| Материал стен | Монолитно-кирпичный |
| Ремонт | Дизайнерский |
| Кол-во совмещенных санузлов | 1 |
| Тип сделки новостройки | переуступка |
| Тип продажи Циан | 214-ФЗ |
| Апартаменты | Есть |
| Пентхаус | Нет |
| Тип лица cian (CPL модерация) | Физическое лицо |
| Имя (для физ. лица) cian (CplModeration) | Вадим |
| Отчество (для физ. лица) (CplModeration) | Владиславович |
| Фамилия (для физ. лица) (CplModeration) | Бельтюков |
| Населенный пункт | Москва |
|---|---|
| Район города | Басманный |
| Улица | улица Земляной Вал |
| Номер дома | 37 |
Объект 22522. Дом Chkalov - для успешных бизнесменов и политиков и их членов семьи достигших высоких результатов в жизни. Предлагаются высококлассные апартаменты с отделкой от известного дизайнера MARTIN HULBERT. Комплекс уникален тем, что он расположен в центре исторического города у двух станций метро " Курская" и "Чкаловская". Дом включает в себя две башни по 21 этажу на стилобате. В комплексе воплощена концепция розничной торговли в помещении, где жители будут иметь отдельный вход в четырех этажную торговую галерею в стилобатной части. Предусмотрен круглосуточный сервис. Буквально в 10 мин. расположено бюро архитектуры Artpla, бизнес квартал "Арма", Центр современного искусства "Винзавод" Расположение по соседству ТРК " Атриум" позволит вам наслаждаться покупками известных брендов. Приятно провести время в компании за чашкой кофе в именитых ресторанах Москвы, салонов красоты и высокого сервиса Дома Chkalov. В комплексе 396 апартаментов с высокими потолками от 3 метров и панорамными открывающимся окнами. Инженерное оснащения комплекса включает в себя центральную систему кондиционирования VRV, возможность регулировки режима температуры, современное электроснабжение, высокоскоростной интернет, цифровую телефонию, ТВ-сети. Управление из единой диспетчерской. Безопасность обеспечивается видеонаблюдением и системой контроля доступа. Здание оборудовано лифтами Schindler. Четырех уровневый подземный паркинг вмещает 270 машиномест.











