Продается 3-х комн. новостройка, 74.6 кв.м., 3/16 эт
Обзор№ - 28695
| Стоимость | 31 990 000 |
|---|---|
| Стадия строительства | дом построен, но не сдан |
| Год постройки | 2025 |
| Этаж | 3 |
| Этажность | 16 |
| Комнат в квартире | 3 |
| Площадь, кв.м. | 74.6 |
| Жилая площадь | 68 |
| Материал стен | Монолитно-кирпичный |
| Ремонт | Без ремонта |
| Кол-во совмещенных санузлов | 2 |
| Тип сделки новостройки | переуступка |
| Тип продажи Циан | Договор уступки права требования |
| Апартаменты | Нет |
| Пентхаус | Нет |
| Тип лица cian (CPL модерация) | Физическое лицо |
| Имя (для физ. лица) cian (CplModeration) | Евгений |
| Отчество (для физ. лица) (CplModeration) | Владимирович |
| Фамилия (для физ. лица) (CplModeration) | Поликарпов |
| Свободная планировка | Есть |
| Тип дома cian | Монолитный |
| Название ЖК в Циан | Дом на Зорге |
Адрес
| Населенный пункт | Москва |
|---|---|
| Район города | Сокол |
| Улица | улица Зорге |
| Номер дома | 25с3 |
В избранное Евро-3. White Box.
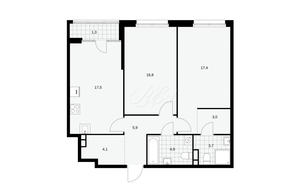
Объект 28695. Предлагается евро трехкомнатная квартира в современном жилом комплексе бизнес-класса "Дом на Зорге". Можно спланировать: просторную кухню-гостиную с выходом на лоджию, мастер-спальню с санузлом и гардеробной, вторую спальню, совмещенный санузел, гардеробную. Окна квартиры выходят в тихий двор.
Инфраструктура жилого комплекса будет прекрасно развита, планируется реализация концепции "двор без машин", проектом предусмотрены детские площадки, места для занятий спортом. Сокол - элитный район Москвы. Отличная транспортная развязка. Много мест для прогулок на свежем воздухе.
Выдача ключей в III квартале 2025 г. Прямой представитель собственника. Звоните, отвечу на все вопросы.











