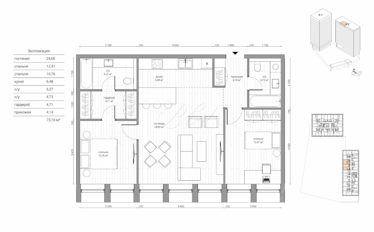
Продается 3-х комн. квартира, 73.2 кв.м., 18/18 эт
| Стоимость | 33 934 400 |
|---|---|
| Ремонт | Без ремонта |
| Кол-во совмещенных санузлов | 2 |
| Балкон | Нет |
| Возможность ипотеки | Есть |
| Апартаменты | Есть |
| Пентхаус | Есть |
| Свободная планировка | Есть |
| Комнат в квартире | 3 |
| Площадь, кв.м. | 73.2 |
| Жилая площадь | 49 |
| Площадь кухни, кв.м. | 6 |
| Этаж | 18 |
| Этажность | 18 |
| Материал стен | Монолитный |
| Населенный пункт | Москва |
|---|---|
| Район города | Щукино |
| Улица | проезд Большой Волоколамский |
| Номер дома | 23 |
Объект 30157. Продаются просторные 3-х комнатные апартаменты площадью 73,2 кв.м, расположенные на последнем (18/18) этаже дома в комплексе B’aires. Без отделки и перегородок. Идеальная прямоугольная форма. Можно спланировать: кухню-гостиную, мастер-спальню с гардеробной и санузлом, спальню, совмещенный санузел. Кроме того, высота потолков (4,5 метра) позволяет дополнительно предусмотреть антресоль, что увеличит площадь апартаментов до 100 кв.м. Потрясающий вид на город, солнечная сторона.
Собственный выход из комплекса к Всехсвятской роще. Северо-Запад Москвы имеет богатую инфраструктуру, прекрасную транспортную доступность и хорошую экологическую обстановку, имея возможность похвастаться множеством парков.
Звоните, отвечу на все вопросы.





































