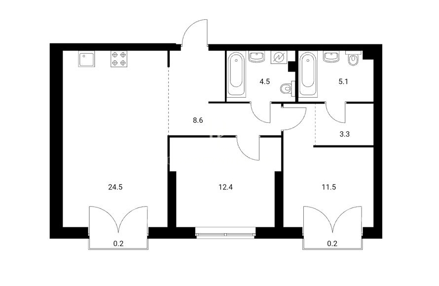
Продается 3-х комн. квартира, 71 кв.м., 15/33 эт
| Стоимость | 34 650 000 |
|---|---|
| Ремонт | Дизайнерский |
| Кол-во совмещенных санузлов | 2 |
| Возможность ипотеки | Есть |
| Апартаменты | Нет |
| Пентхаус | Нет |
| Свободная планировка | Нет |
| Узаконена ли планировка | Есть |
| Есть ли право собственности | Есть |
| Тип дома cian | Монолитный |
| Комнат в квартире | 3 |
| Площадь, кв.м. | 71 |
| Жилая площадь | 35 |
| Площадь кухни, кв.м. | 15 |
| Этаж | 15 |
| Этажность | 33 |
| Материал стен | Монолитный |
| Населенный пункт | Москва |
|---|---|
| Район города | Бутырский |
| Улица | улица Руставели |
| Номер дома | 16к2 |
Объект 28929. Предлагается превосходная евро трехкомнатная квартира в ЖК "Руставели 14". Функциональная планировка: просторная кухня-гостиная с французским балконом, две отдельные спальни (одна из которых мастер-спальня с собственным санузлом и французским балконом), два совмещенных санузла, прихожая. В квартире выполнен современный ремонт по индивидуальному дизайн-проекту. Установлена система "умный дом". В каждой комнате оборудованы бризеры, обеспечивающие свежий, очищенный воздух. Квартира полностью меблирована и укомплектована.
На территории комплекса расположены игровые детские площадки, места для отдыха, реализована концепция "двор без машин". На первых этажах будут расположены магазины, кафе, стоматология, пункты выдачи и многое другое. Развитая инфраструктура района: школы, детские сады, поликлиника, вблизи находятся парки - Гончаровский и Останкино. Удобное транспортное сообщение: в пешей доступности станция метро "Бутырская" (3 минуты).
Прямой представитель собственника.

























