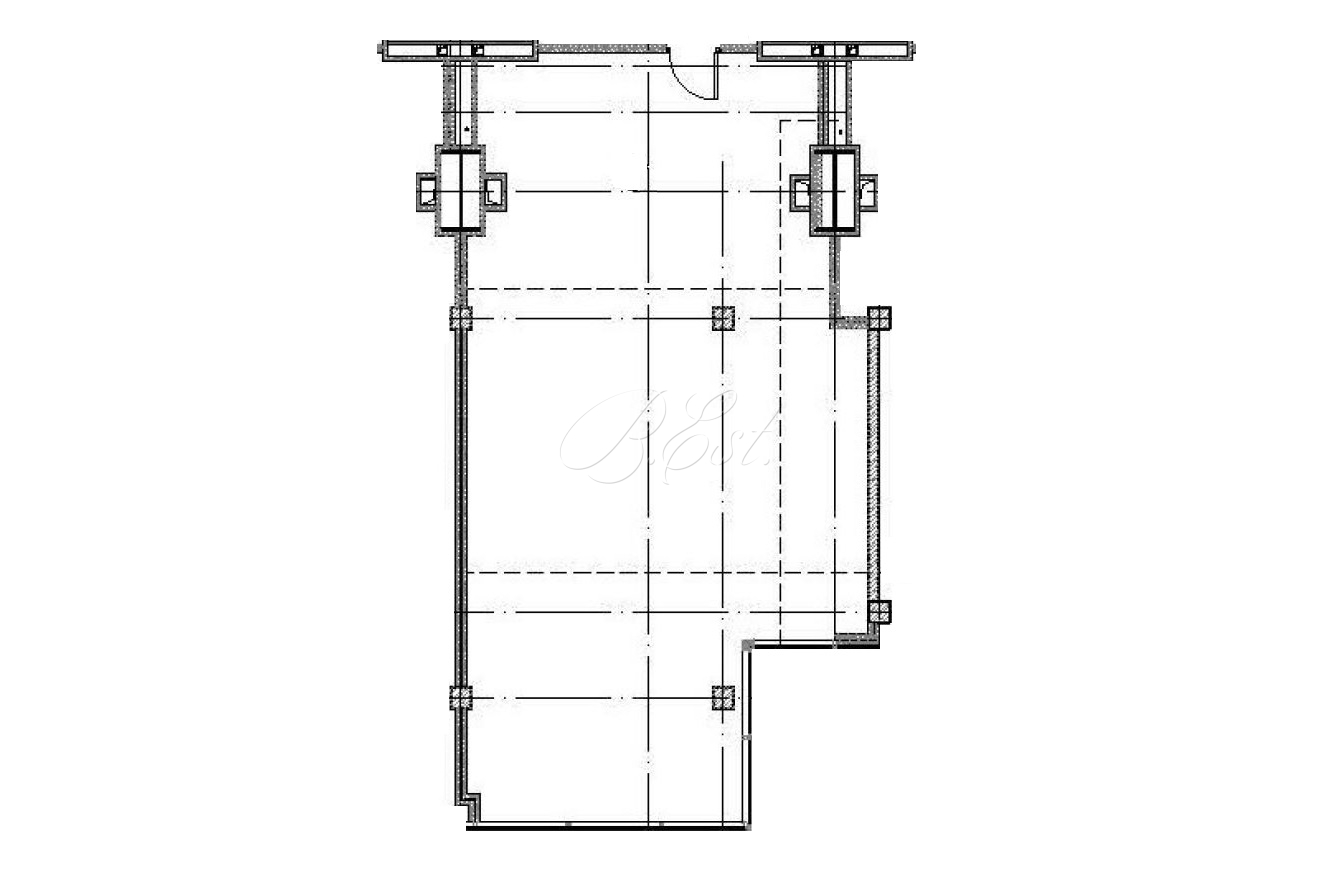
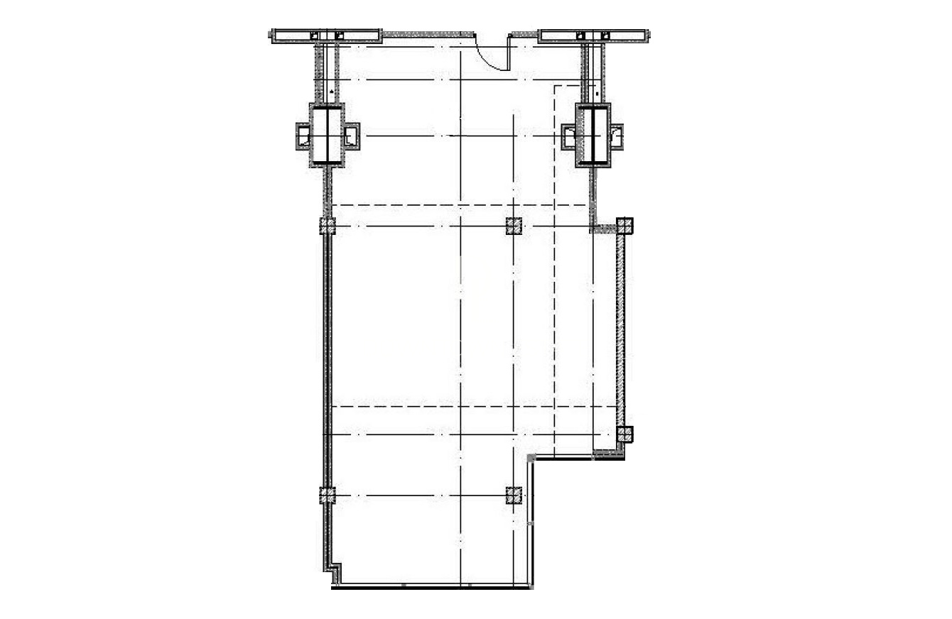
Продается 3-х комн. квартира, 98.9 кв.м., 8/12 эт
| Стоимость | 55 000 000 |
|---|---|
| Ремонт | Без ремонта |
| Кол-во совмещенных санузлов | 1 |
| Кол-во разделенных санузлов | 1 |
| Балкон | Нет |
| Возможность ипотеки | Есть |
| Апартаменты | Есть |
| Пентхаус | Нет |
| Свободная планировка | Есть |
| Комнат в квартире | 3 |
| Площадь, кв.м. | 98.9 |
| Жилая площадь | 60 |
| Площадь кухни, кв.м. | 20 |
| Этаж | 8 |
| Этажность | 12 |
| Материал стен | Газобетонный блок |
| Населенный пункт | Москва |
|---|---|
| Район города | Тверской |
| Улица | улица 2-я Брестская |
| Номер дома | 6 |
Объект 24309. Предлагаются просторные трехкомнатные апартаменты свободной планировки под отделку в ЖК "Резиденция Тверская". Благодаря свободной планировке любая Ваша идея организации пространства и самое смелое дизайнерское решение смогут быть воплощены с легкостью. Вид из окна будет завораживать Вас каждый вечер и каждое утро: панорамное остекление в темное время суток будет передавать изыски вечернего города, а с наступлением нового дня - наполнять комнаты лучами яркого солнца.
Локация имеет ряд преимуществ: с одной стороны, центральное расположение и пешая доступность до всей инфраструктуры, включая исторические места города, позволяют идти в ногу со временем, не отставая от бешеного ритма современного мегаполиса. С другой - резиденция скрыта от шумного трафика машин, обеспечивая приватность проживания, позволяя наслаждаться пешими прогулками и быстрее восстанавливать силы, отдыхая от напряженного рабочего дня. К услугам жильцов: SPA, салон красоты, сигарная комната, кафе, детская игровая, коворкинг. В ЖК "Резиденция Тверская" Вы сможете формировать свое будущее и выступать гарантом своей превосходной жизни и успешного бизнеса.
Дом сдан. Собственность оформлена. Документы готовы. Оперативный показ. Быстрый выход на сделку.

























