Продается 4-х комн. квартира, 219.4 кв.м., 4/6 эт
Обзор№ - 27285
| Стоимость | 3 291 000 |
|---|---|
| Ремонт | Без ремонта |
| Кол-во совмещенных санузлов | 1 |
| Кол-во разделенных санузлов | 1 |
| Балкон | Лоджия |
| Возможность ипотеки | Есть |
| Апартаменты | Нет |
| Пентхаус | Нет |
| Свободная планировка | Есть |
| Есть ли право собственности | Есть |
| Комнат в квартире | 4 |
| Площадь, кв.м. | 219.4 |
| Этаж | 4 |
| Этажность | 6 |
| Материал стен | Монолитный |
Адрес
| Населенный пункт | Москва |
|---|---|
| Район города | Хамовники |
| Улица | улица Остоженка |
| Номер дома | 11 |
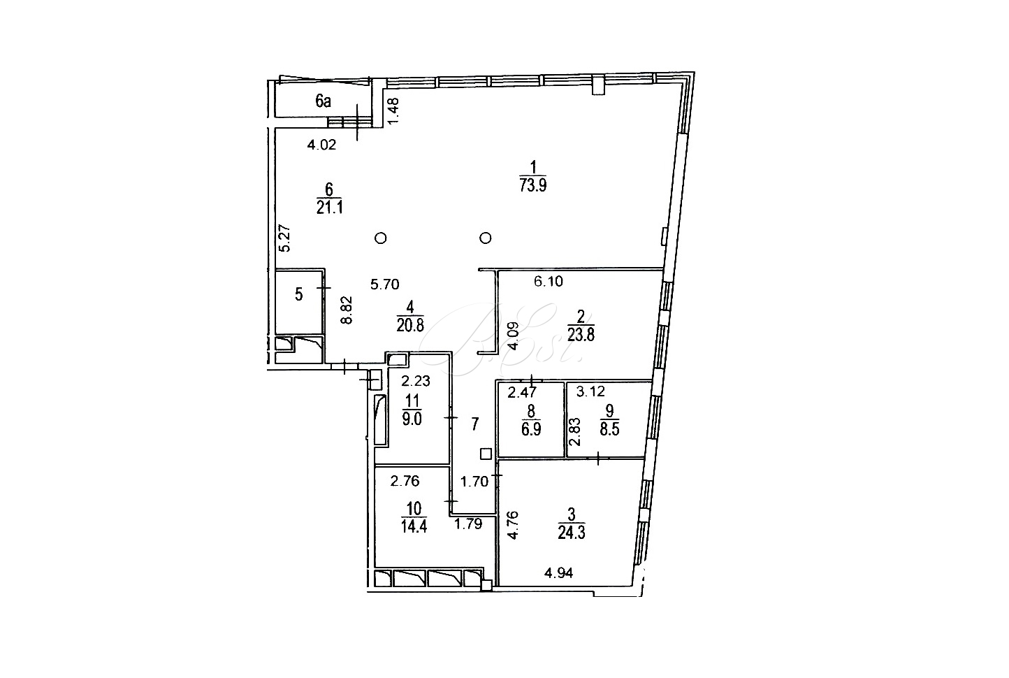
Объект 27285. Предлагается квартира без отделки в премиальном жилом комплексе "Остоженка 11". 12 панорамных окон выходят на две стороны: на улицу Остоженка и во двор. Свободная планировка может предусматривать: кухню-гостиную, 3 спальни, 2 санузла, постирочную, холл, лоджию. Высокие потолки - 3,4 метра.
"Остоженка 11" - элитный клубный дом всего на 36 квартир в районе Золотой мили. Огороженная территория, видеонаблюдение, охрана, благоустроенный зеленый двор. Есть возможность приобрести машиноместа в подземном паркинге (не входят в указанную стоимость). Оперативный показ. Прямой представитель собственника.







































