Продается 3-х комн. квартира, 179 кв.м., 4/5 эт
Обзор№ - 27277
| Стоимость | 2 685 000 |
|---|---|
| Ремонт | Без ремонта |
| Кол-во совмещенных санузлов | 2 |
| Балкон | Лоджия |
| Возможность ипотеки | Есть |
| Апартаменты | Нет |
| Пентхаус | Нет |
| Свободная планировка | Есть |
| Есть ли право собственности | Есть |
| Комнат в квартире | 3 |
| Площадь, кв.м. | 179 |
| Этаж | 4 |
| Этажность | 5 |
| Материал стен | Монолитный |
Адрес
| Населенный пункт | Москва |
|---|---|
| Район города | Хамовники |
| Улица | улица Остоженка |
| Номер дома | 11 |
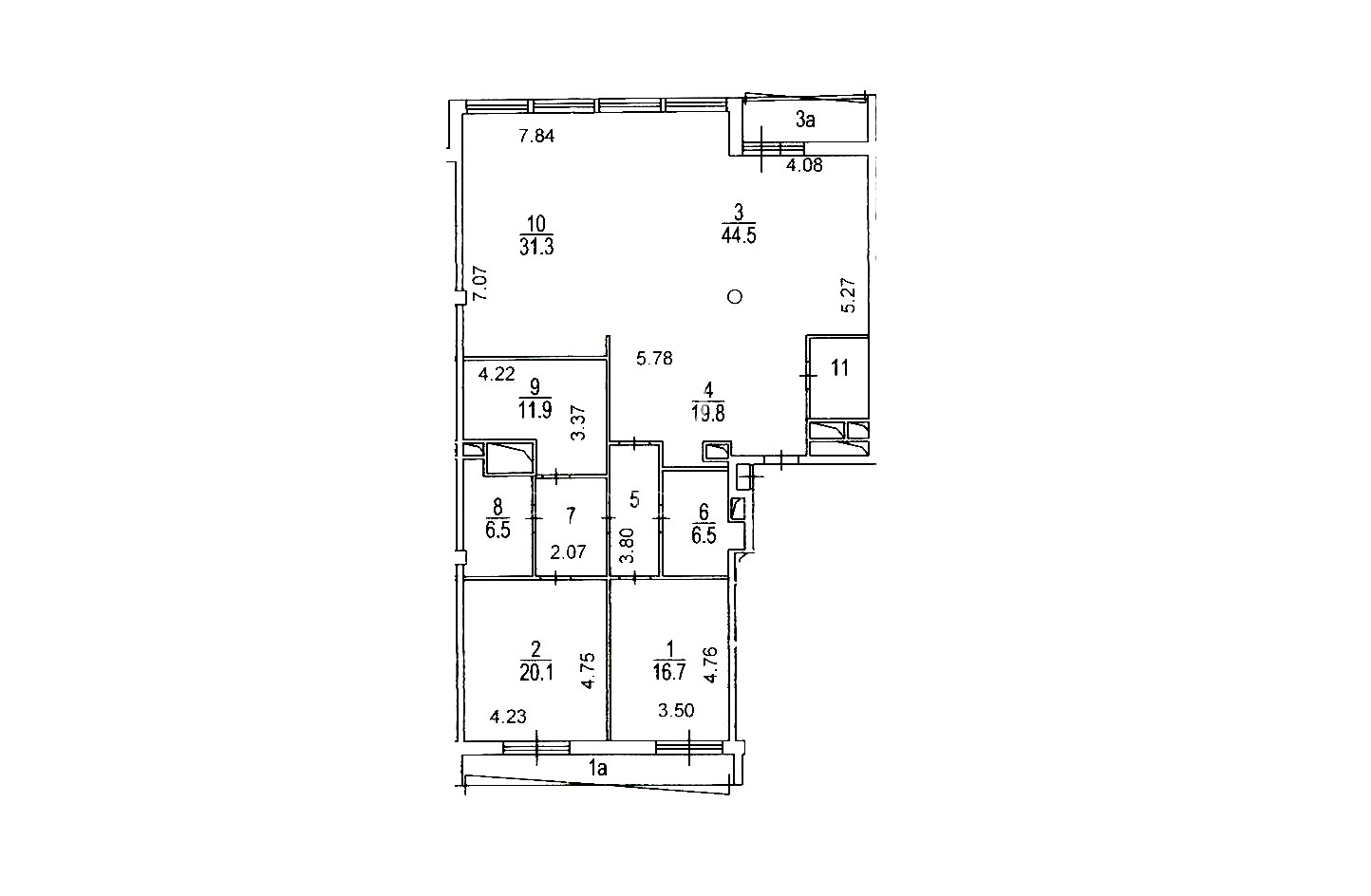
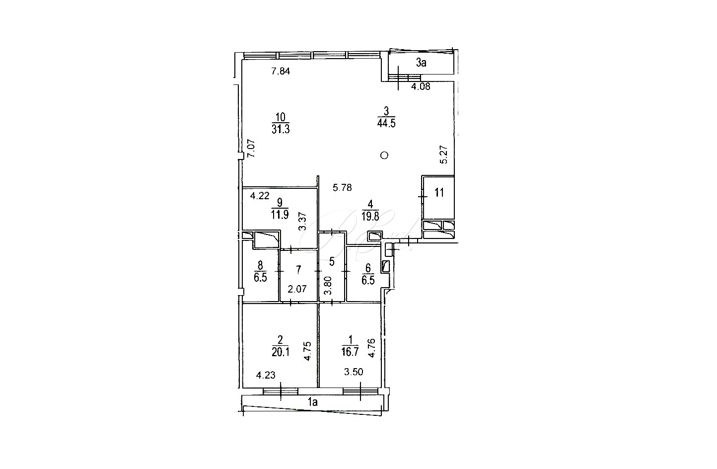
Объект 27277. Предлагается трехкомнатная квартира без отделки в премиальном жилом комплексе "Остоженка 11". Панорамные окна выходят на две стороны: на улицу Остоженка и во двор. Возможная планировка: кухня-гостиная, 2 спальни, 2 санузла, постирочная, холл, три лоджии. Высокие потолки - 3,4 метра.
"Остоженка 11" - элитный клубный дом всего на 36 квартир в районе Золотой мили. Огороженная территория, видеонаблюдение, охрана, благоустроенный зеленый двор. Есть возможность приобрести машиноместа в подземном паркинге (не входят в указанную стоимость). Оперативный показ. Прямой представитель собственника.

















































