Продается коммерческая, 228.4 кв.м., 28/65 эт
Обзор№ - 29508
| Стоимость | 180 000 000 |
|---|---|
| Кол-во разделенных санузлов | 2 |
| Кол-во совмещенных санузлов | 1 |
| Планировка cian | Смешанная |
| Тип парковки | Подземная |
| Тип здания | Бизнес-центр |
| Вход cian (avito) | Общий с улицы |
| Тип сделки авито коммерческая | Продажа |
| Отделка помещения коммерческая | Офисная |
| Право собственности | Собственник |
| Тип недвижимости (Гипернн) | Помещение |
| Состояние cian | Дизайнерский ремонт |
| Ремонт коммерческая | дизайнерский |
| Тип дома cian | Монолитный |
| Тип коммерческой | Офисное помещение |
| Площадь, кв.м. | 228.4 |
| Этаж | 28 |
| Этажность | 65 |
| Класс здания | A |
Адрес
| Населенный пункт | Москва |
|---|---|
| Район города | Пресненский |
| Улица | набережная Пресненская |
| Номер дома | 8с1 |
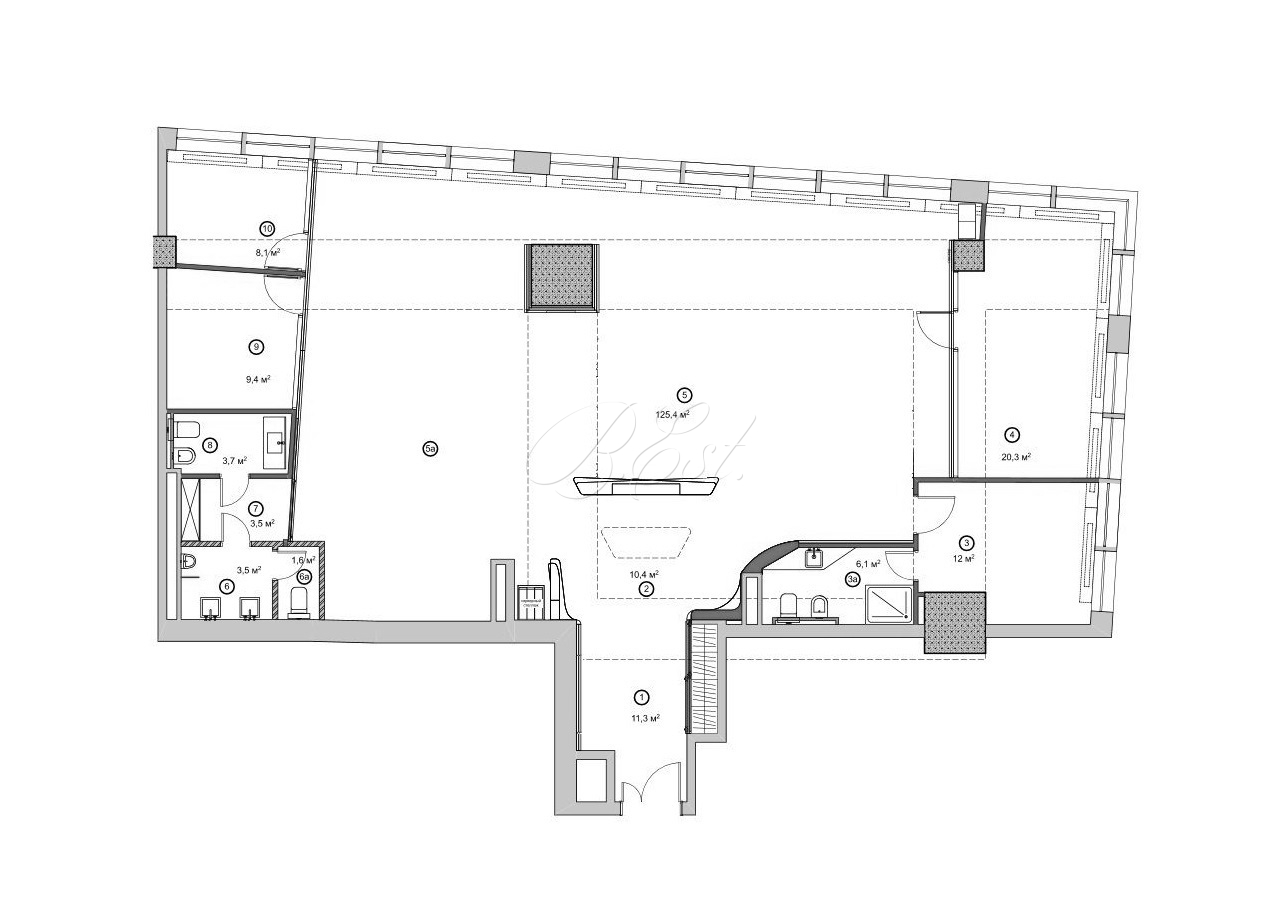
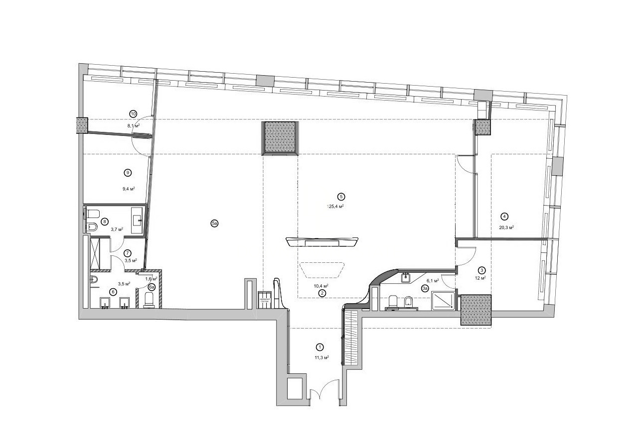
В избранное Офис с дизайнерским ремонтом
Объект 29508. Предлагается помещение свободного назначения с дизайнерским ремонтом в БЦ "Город столиц" (башня Санкт-Петербург). Расположено на 28 этаже, обладает потрясающим видом на северо-восток. В настоящий момент помещение занимает офис, планировка которого предусматривает 3 кабинета (включая кабинет с совмещенным санузлом), переговорную, 2 санузла (женский и мужской), зону ресепшн. Общая площаддь 228.4 м2 Свободная продажа,1 собственник. Звоните, отвечу на все вопросы.





























































