Продается коммерческая, 129 кв.м., 7/8 эт
| Стоимость | 46 000 000 |
|---|---|
| Кол-во совмещенных санузлов | 2 |
| Планировка cian | Смешанная |
| Возможное назначение | Офис |
| Тип парковки | За шлагбаумом во дворе |
| Тип здания | Бизнес-центр |
| Вход cian (avito) | Общий с улицы |
| Тип сделки авито коммерческая | Продажа |
| ТЦ/БЦ cian | 5389 |
| Отделка помещения коммерческая | Без отделки |
| Право собственности | Собственник |
| Способ связи avito | По телефону и в сообщениях |
| Ремонт коммерческая | черновая отделка |
| Тип дома cian | Монолитный |
| Тип коммерческой | Офисное помещение |
| Площадь, кв.м. | 129 |
| Этаж | 7 |
| Этажность | 8 |
| Класс здания | B |
| Населенный пункт | Москва |
|---|---|
| Район города | Даниловский |
| Улица | проезд 2-й Павелецкий |
| Номер дома | 5с1 |
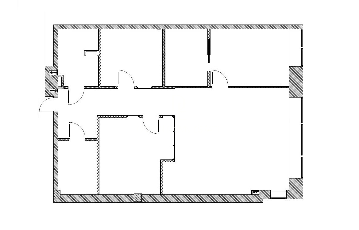
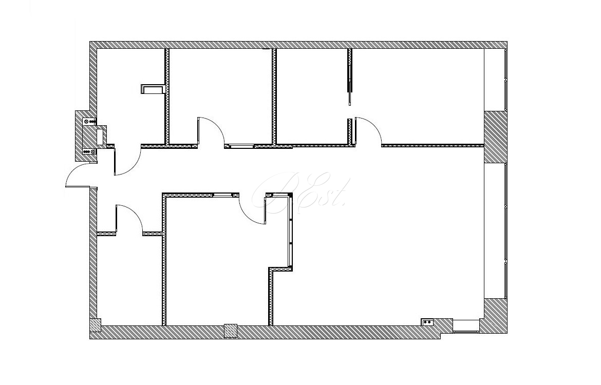
Объект 29962. Предлагается помещение в центре делового района. Проектом предусмотрены просторная кухня-гостиная, 3 отдельных кабинета, 2 полноценных санузла, гардеробная. Помещение готово к финишной отделке. Выполнен монтаж всех инжененрных сетей: электрика, водоснабжение, вентиляция. Выполнена шумоизоляция и завершена отделка санузлов. Установлены межкомнатные двери. Из окон открывается панорамный вид на реку.
Помещение расположено в апарткомплексе: с первого по шестой этаж - офисы и коммерческая недвижимость, седьмой и восьмой этажи - апартаменты. Для владельцев доступна инфраструктура бизнес-центра, а также отдельный вход с персональным лифтом.
В районе находится большое количество бизнес-центров, торговых комлексов, предприятий повседневного спроса. Район активно развивается: будет выполнено благоустройство набережной, строительство современных жилых комплексов. Удобный и быстрый выезд как на ТТК, так и в сторону центра







































































